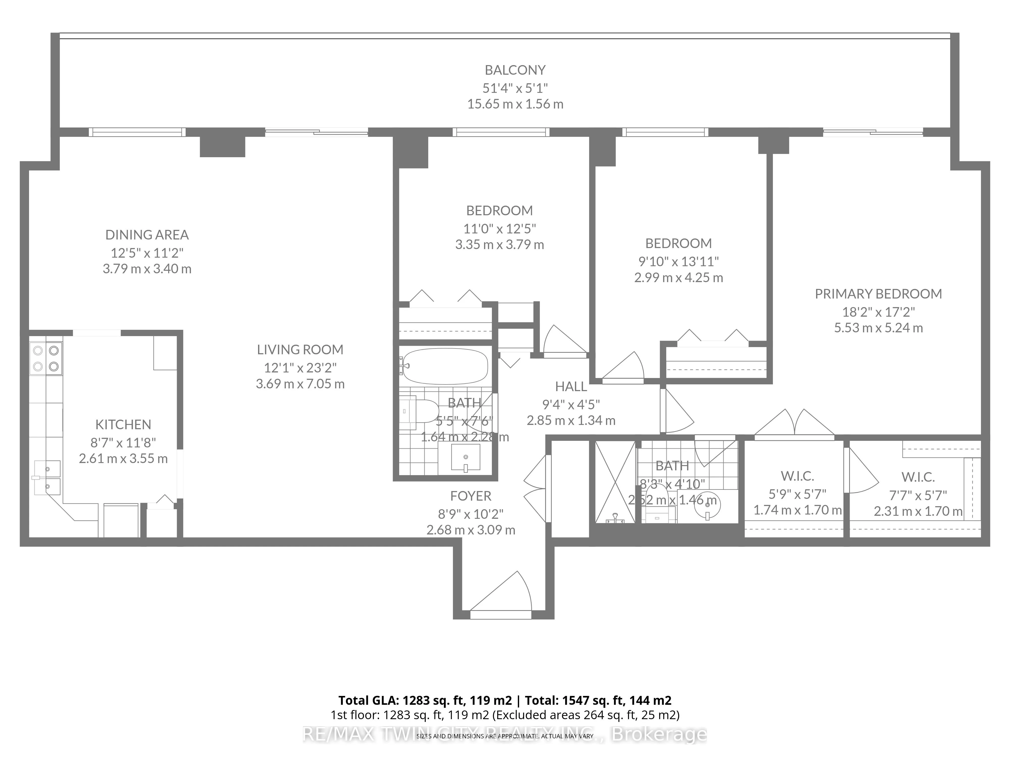
Welcome to Unit 300 at 640 West Street – a beautifully maintained 3-bedroom, 2-bathroom carpet-free, end unit condo in Brantford’s desirable North End. Perfectly positioned close to top-rated schools, parks, shopping (including Costco and the Lynden Park Mall), and just minutes to Highway 403, this spacious unit offers comfort, convenience, and value. Enjoy city views from your oversized private balcony, and step inside to a bright, open layout featuring a generously sized kitchen with abundant cabinet space. The expansive primary suite includes a large walk-in closet and a private ensuite. This well-managed, secure building features underground parking, key fob entry, elevator access, a modern lobby, party and media rooms, and strong condo board oversight. Whether you’re upsizing, downsizing, or investing – this is carefree condo living at its finest. Book your private showing today!
For Sale in Brantford
640 West Street W 300, Brantford, ON N3R 6M3
- Richi Khanna
- 647-997-1281
-
khannarichi@gmail.com

















































