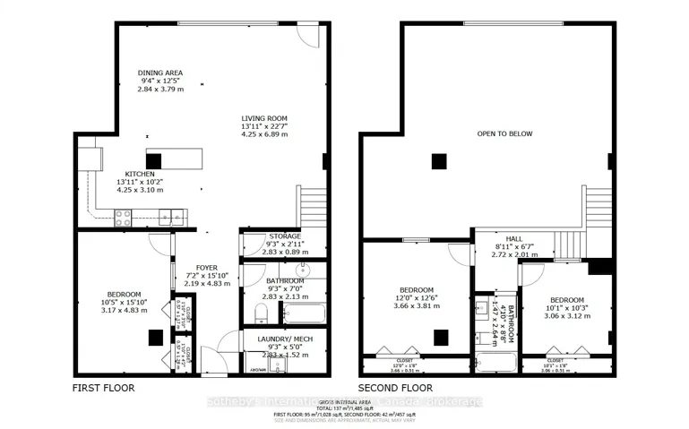
Welcome to loft living at 111 Grey Street in one of Brantford’s most unique condo conversions. This spacious two-storey unit offers nearly 1,500 square feet of character-filled living space. High ceilings, oversized windows, and the open loft layout give this unit a style you simply don’t find in typical condo apartments. The main level features an open concept kitchen, dining, and living area with plenty of natural light and room to spread out, making it ideal for entertaining or relaxing. Upstairs, the second level offers generous bedroom space and flexibility for a home office, den, or additional storage depending on your needs. Whether you’re a first-time buyer looking for space and character, or an investor searching for a solid addition to your portfolio, the size and style of this unit make it a standout opportunity in the building. Located close to downtown amenities, trails, shopping, and transit, this building is well known for its loft charm and strong sense of community. If you’ve been waiting for a larger unit in this sought-after conversion at an approachable price point, this is your chance.
For Sale in Brantford
111 Grey Street 213, Brantford, ON N3S 4V8
- Richi Khanna
- 647-997-1281
-
khannarichi@gmail.com


























