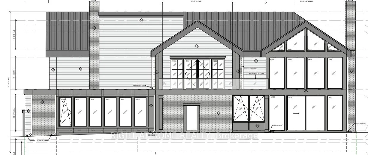
Rare opportunity to own a high-exposure property on the bustling Highway 48 corridor. This versatile address offers a perfect blend of rural charm and urban accessibility, situated just minutes from the growing communities of Stouffville and Mount Albert. The expansive lot provides excellent visibility for a potential live-work setup, home-based business, or a strategic long-term investment. With ample parking, a spacious yard, and close proximity to local dining, golf courses, and essential services, this property serves as a fantastic canvas for your vision. Whether you are looking to renovate the existing structure or explore future development possibilities, this location ensures your investment is well-positioned for growth. Architectural blueprint, structure drawings, sewage system design, etc. included with the sale. Existing property selling as-is.
For Sale in York
13358 Highway 48 N/a, Whitchurch-stouffville, ON L4A 7X3
- Richi Khanna
- 647-997-1281
-
khannarichi@gmail.com













